Skip to content
Felix Vik
Architecture Student & Designer
Work
About
Contact
Work
About
Contact
Architecture
Title
Type
2023
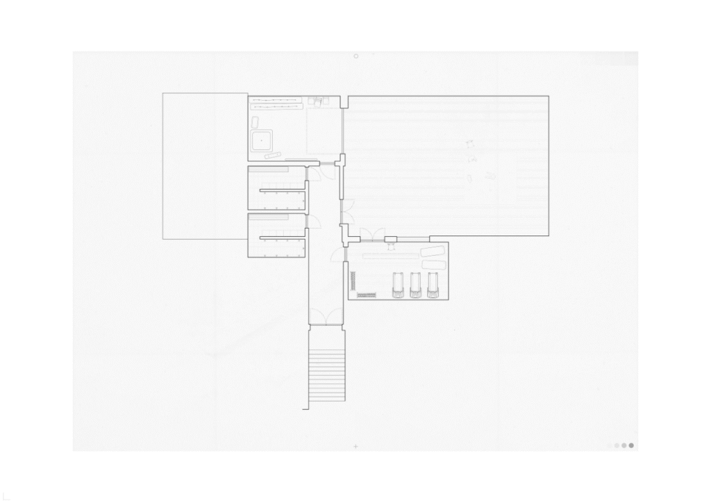
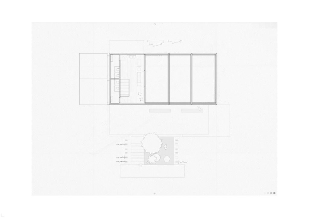
Housing For Acrobatics
Sport-center
In a courtyard in Kvadraturen stands a structure known as the “German Bunker.” Built in the post-war era, plans are underway to remove the building to make way for a plot that adjoins an existing brick structure.
Work
Title
Type
Information
2025
Taller
Social Housing
Social housing and industrial hall transformation.
2025
Connecting The Existing
Urbanism
Urban project connecting mountain, city, and park.
2025
Paulus
Nursing-home
Transformation of Paulus Nursing Home in Oslo.
2024
Deichman Holmlia
Case-study
Case study of Deichman Holmlia.
2024
The Connection
Urban planning
Parking structure with multiple programs connected to Gjettum.
2024
Risløkka Culinary Center
Culinary center
Project based on selfproducing food from restauant.
2025
Serpentine
Case-study
Case study of Peter Zumthor’s Serpentine Pavilion.
2023
Maridalsveien 31
Apartment-builiding
Apartment-building designed for families and single individuals/couples.
2023
Housing For Acrobatics
Sport-center
Sport-center designed for acrobats and spectators.
2023
Breakdance Studio
Installation
Breakdance studio created within a 6m x 6m x 6m framework.
2022
Gallery Latapie
Gallery
Gallery designed for the sculptures of Per-Inge Bjørlo.
2022
1:1
Installation
Physical project consisting of concrete elements, paper, and wood.
2023
Nygaten 10
In-progress
Total-renovation of a vacation home from 1910.
2024
Saepe
Branding
Saepe sells soap & well-care products.
2024
Zipline
Branding
Transforming WordPress Migrations – Fast, Secure, Seamless.
2024
Idee
Co-Founder
Co-Founder and Designer of Idee Design Studio.
2024
Sporveien Feriehytter
Branding
A system to simplify booking for employees.
2023
KAHOS
Logo Comeptition
An association for architecture students.
2024
Nemoest
Branding
Creates AI solutions to make legal help accessible and affordable.
2024
BOtag Technology
Branding
BOtag connect consumers directly with physical stores.
2024
Ironmen
Branding
An amateur triathlon.